Hammarby sjöstad

Ekens skole

  • Kunde: Skolfastigheter i Stockholm AB
  • Bruttoareal: 3394 kvm
  • Modultype: S3000
  • Innflyttingsår: 2018
  • Plassering: Hammarby sjöstad
  • Aktivitet: Skole
  • Antall moduler: 117

Vi har en fantastisk fin og bra skole – det synes alle.

konstaterer skolens rektor Christina Lindgren.
skolans rektor Christina Lindgren.
Ekens skole i Hammarby Sjöstad med en skolemodulløsning fra Expandia, hvor elever beveger seg over skolegården foran grå moduler i to etasjer med innganger og utvendige trapper.

Montert på tre uker

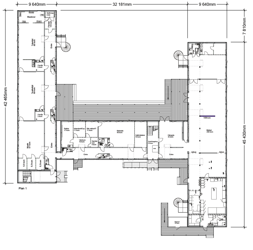
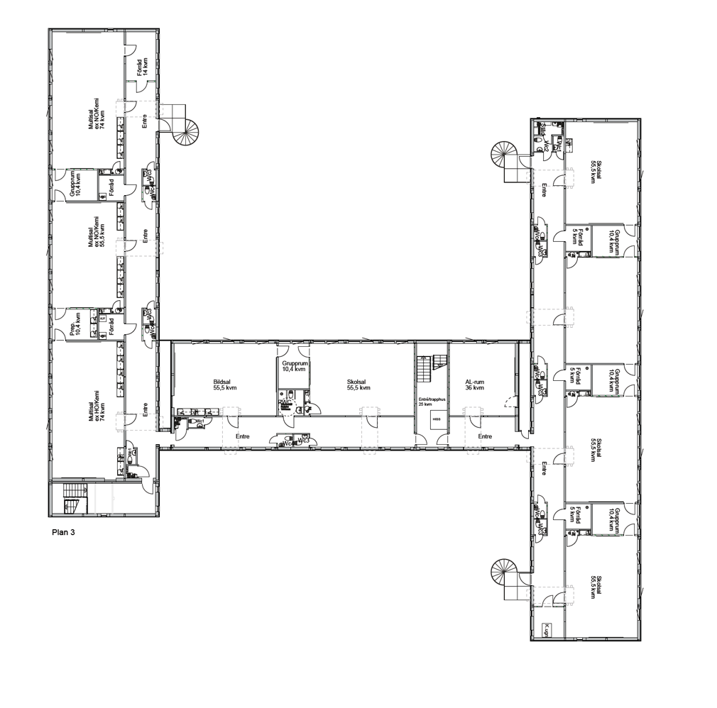
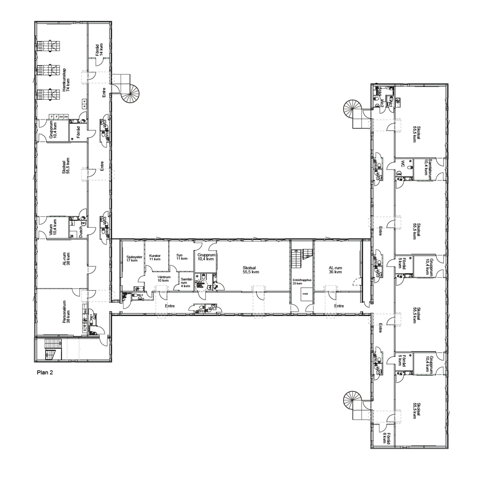
På Ekens skole i Hammarby Sjöstad går det i dag 450 elever. Den tre etasjer høye bygningen rommer 20 klasserom, fullt utstyrte rom for naturfag, sløyd og mat og helse, samt kunstrom og bibliotek. I tillegg inneholder den administrative arealer, et stort produksjonskjøkken og en kantine på 270 kvadratmeter.

Dette er et strålende eksempel på hvordan en skole raskt kan bygges opp uten å føles det minste midlertidig. De 117 nyproduserte S3000-modulene fra Expandia ble montert i løpet av tre uker, og deretter ferdigstilt innvendig på fire måneder.

Elever samtalar på skolgården utanför Expandias modullösning på Ekens skola i Hammarby Sjöstad, med modulbyggnader i bakgrunden.

Inspiserer, vedlikeholder og utbedrer

Expandia inspiserer og vedlikeholder regelmessig skolens lokaler, samt utbedrer eventuelle skader som oppstår.

– Vi har alltid hatt et veldig godt samarbeid med Expandia. Det er alltid de samme personene som kommer, og de er svært fleksible og løsningsorienterte, konstaterer Christina og fortsetter:

– I en virksomhet med 450 ungdommer oppstår det en viss slitasje. For oss er det viktig å utbedre skader så raskt som mulig, fordi alle tar vare på et miljø som er fint. På den måten har vi for eksempel ikke noe tagging.

Elever har musiklektion i skolans kreativa miljö. Undervisningen sker i en modullösning från Expandia vid Ekens skola i Hammarby Sjöstad.
Elever gjennomfører en biologitime og presenterer en anatomimodell i et klasserom i Expandias modulløsning på Ekens skole i Hammarby Sjöstad.

Positivt rykte

Ekens skole har fått et godt omdømme blant elever, skoleansatte og mange av dem som søker seg til ny skole. Etterspørselen er stor. I tillegg har Ekens skole fått oppmerksomhet i mediene for å ha oppnådd gode resultater gjennom nye undervisningsmetoder, såkalte temauker. Skolen har også vunnet Stora läspriset, som ble delt ut under Bokmessen høsten 2023.

 

Elever oppholder seg i skolebiblioteket i Expandias modulløsning på Ekens skole i Hammarby Sjöstad, hvor de leser og velger bøker blant bokhyller i et rolig studiemiljø.

Ingen spørsmål er for små

Hva koster en slik løsning, kan modulene stå på alle typer grunn, og hva inngår i leien? Vi vet at det kan dukke opp mange spørsmål når man vurderer å leie moduler. Derfor er våre eksperter tilgjengelige for å svare på alt du måtte lure på.

Kundecase

Se lignende kundecaser

Siden vi startet for over 30 år siden, har vi levert tusenvis av midlertidige lokaler til skoler, bedrifter og boliger over hele Norge. Her kan du se noen av løsningene vi har skapt for våre kunder.