Göteborg

Østra Sykehuset Göteborg

Moduler från Expandia vid Östra sjukhuset i Göteborg, använda som kirurgmottagning och förlossningsavdelning, placerade intill sjukhusets ordinarie byggnad.
  • Kunde: Västfastigheter
  • Bruttoareal: 2400 kvm
  • Modultype: K2000 (spesialbygde)
  • Innflyttingsår: Kirurgisk poliklinikk 2014 med tilbygg 2017 Fødeavdelingen 2018
  • Plassering: Göteborg
  • Aktivitet: Kirurgisk poliklinikk og fødeavdeling
  • Antall moduler: 24
Moduler från Expandia vid Östra sjukhuset i Göteborg, använda som kirurgmottagning och förlossningsavdelning, placerade intill sjukhusets ordinarie byggnad.

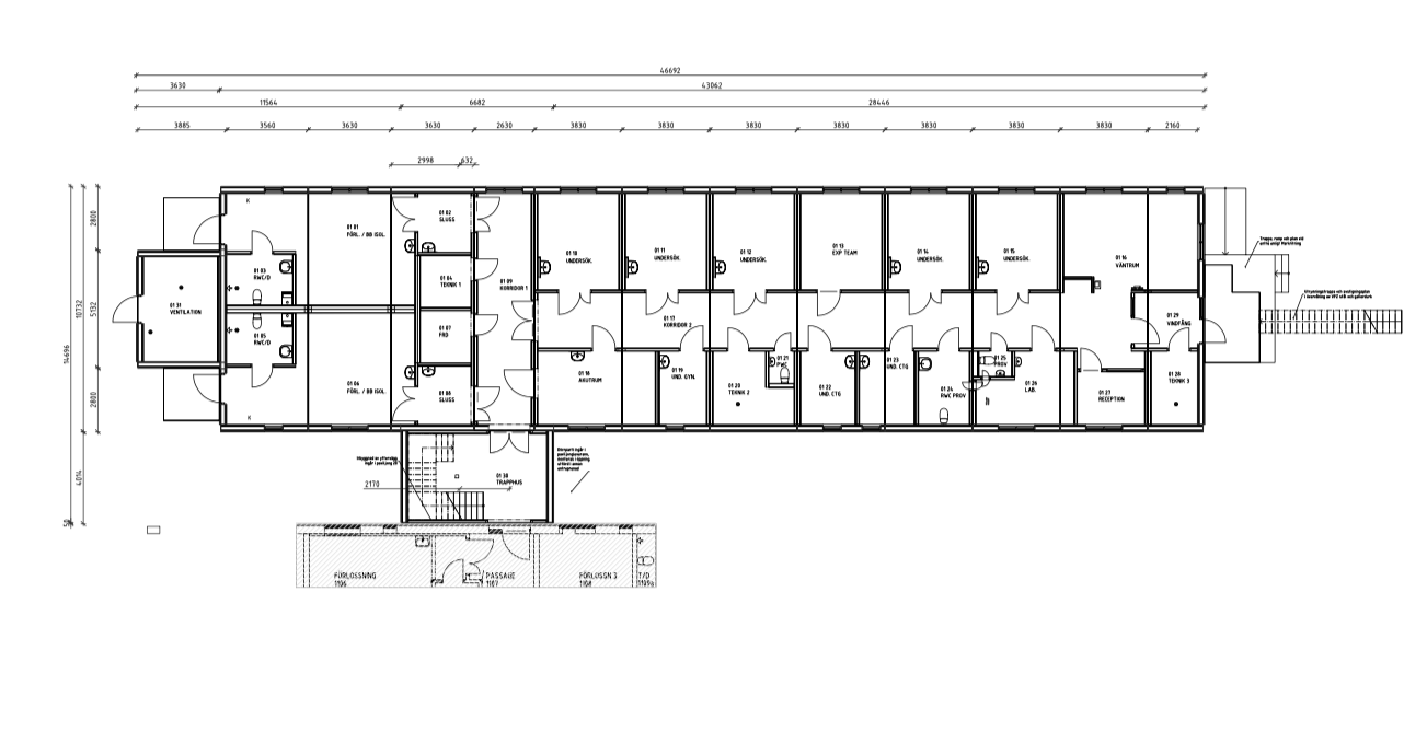
Kirurgisk poliklinikk og fødeavdeling fra Expandia

Østra sykehuset i Göteborg leier for tiden to midlertidige bygninger fra Expandia.

Den kirurgiske poliklinikken har hatt full drift i Expandias moduler siden 2014, med utvidelse våren 2017, og høsten 2018 utvider fødeavdelingen sine lokaler med en ny paviljong.

Entré till förlossningsavdelningen vid Östra sjukhuset i Göteborg, där moduler från Expandia används för förlossning, integrerade med sjukhusområdet.

Oppfyller høye krav til sterile miljøer

Sykehusmiljøer har svært høye krav, både når det gjelder å opprettholde et sterilt miljø, strenge tilgjengelighetskrav og også alarm- og tilkallingssystemer som i dette tilfellet integreres med eksisterende systemer.

Til Østra sykehuset ble det bygget spesialmoduler for å imøtekomme kravene, men de er i utgangspunktet basert på Expandias K2000-moduler. De to bygningene består totalt av 26 moduler i to etasjer og har fasadeplater i grått komposittmateriale for å passe inn med de øvrige bygningene i området.

Undersökningsrum i modul från Expandia vid Östra sjukhuset i Göteborg, utrustat med förvaring, arbetsbänk, kylskåp, handfat och medicinsk väggutrustning för vårdverksamhet.

Ingen spørsmål er for små

Hva koster en slik løsning, kan modulene stå på alle typer grunn, og hva inngår i leien? Vi vet at det kan dukke opp mange spørsmål når man vurderer å leie moduler. Derfor er våre eksperter tilgjengelige for å svare på alt du måtte lure på.

Kundehistorier

Se flere kundehistorier

Siden vi startet for over 30 år siden har vi levert tusenvis av midlertidige lokaler til skoler, bedrifter og boliger i Norge, Sverige, Danmark og Finland. Her kan du se noen av løsningene vi har skapt for kundene våre.