Långaryd
Solgläntans barnehage
En fleksibel og god løsning
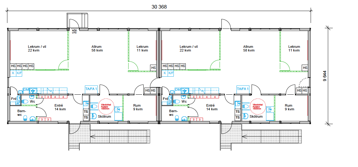
To avdelinger på ett plan
Fleksible kontorlokaler for prosjektkontorer, virksomheter i vekst og midlertidige etableringer.
Innflyttingsklare skolemoduler med gode læringsmiljøer – raskt på plass.
Trygge barnehagemoduler med moderne og inspirerende miljøer for lek og læring.
Trivelige boliger i form av korridorrom eller leiligheter. Raskt etablert når behovet oppstår.
Raske, fleksible helsemoduler for alt fra legekontor til omsorgsboliger.
Trenger du noe utenom det vanlige? Vi bygger alt fra avanserte helsemiljøer til hundebarnehager.
Her finner du moduler som selges utenfor vårt standardsortiment – til en gunstig pris.
Solgläntans barnehage er en frittstående paviljong som er bygget opp av 10 stk. S2000-moduler fra Expandia. I 2016 ble én barnehageavdeling leid inn, for deretter å bli supplert med ytterligere én året etter. En god måte å utvide lokalene trinnvis på i takt med etterspørselen – og enkelt å avslutte leieforholdet dersom behovene endrer seg etter noen år.
Solgläntans barnehage består av to avdelinger på ett plan med plass til 34 barn. Fullt utstyrt med kjøkken, garderobeinnredning, stellerom og en stor og innbydende uteområde.
Hva koster en slik løsning, kan modulene stå på alle typer grunn, og hva er inkludert i leien? Vi vet at det kan dukke opp en del spørsmål når man begynner å vurdere moduler. Derfor er våre eksperter tilgjengelige for å svare på alt du lurer på.
Kundecase
Siden vi startet for over 30 år siden har vi levert tusenvis av midlertidige lokaler til skoler, bedrifter og boliger over hele Sverige. Her kan du se noen av løsningene vi har skapt for kundene våre.