Gullmarsplan, Stockholm

Årsta skole

Skolmoduler från Expandia vid Årstaskolan i Gullmarsplan, flervåningslösning med ljusa klassrum i grön stadsmiljö.
  • Kunde: Skolfastigheter i Stockholm AB
  • Bruttoareal: 2348 kvm
  • Modultype: S3000
  • Innflyttingsår: 2017/2019
  • Plassering: Gullmarsplan, Stockholm
  • Aktivitet: Skole
  • Antall moduler: 81
Skolgård vid Årstaskolan i Gullmarsplan med skolmoduler från Expandia, utformad för trygg lek och moderna lärmiljöer.

Første S3000 skolepaviljong

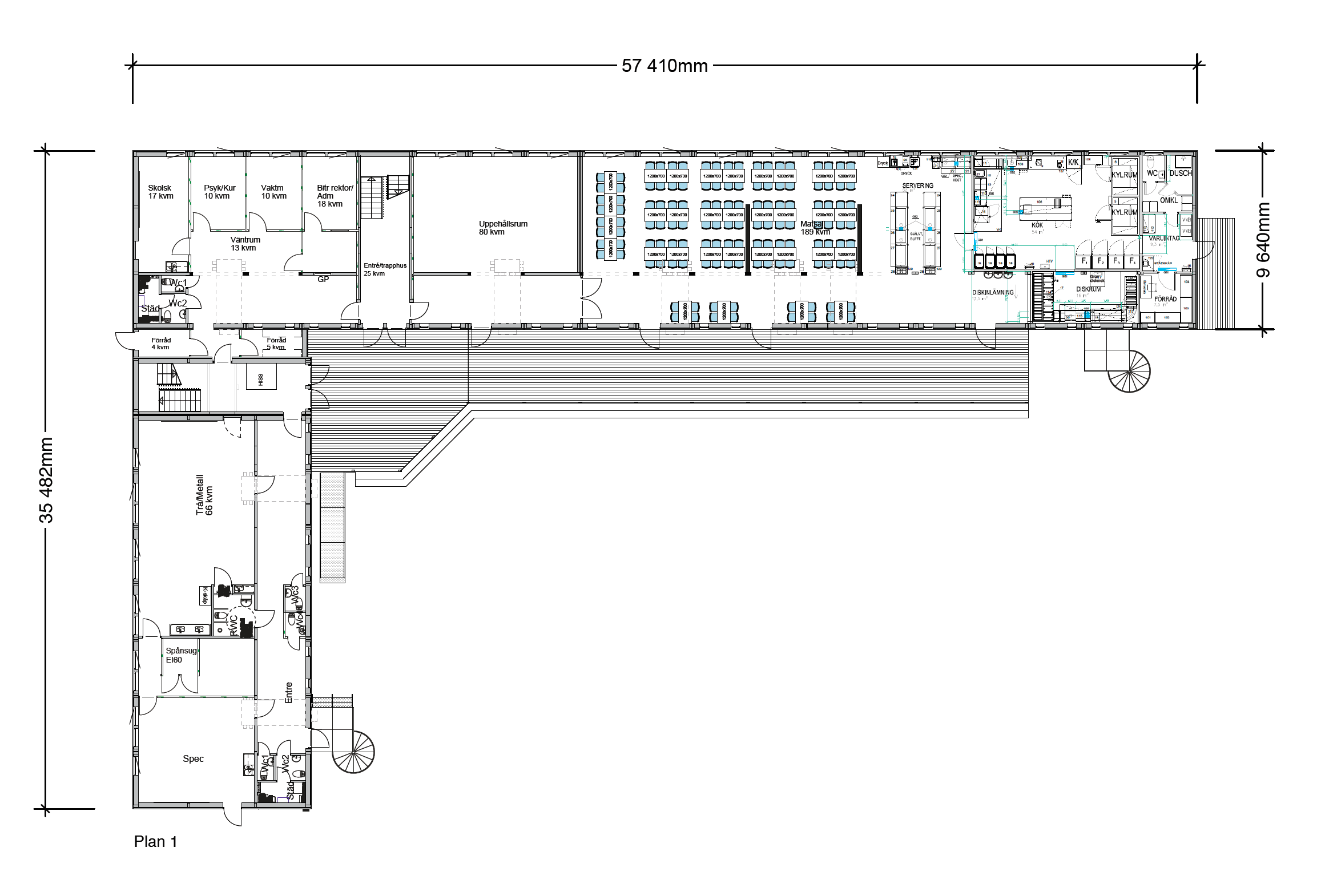
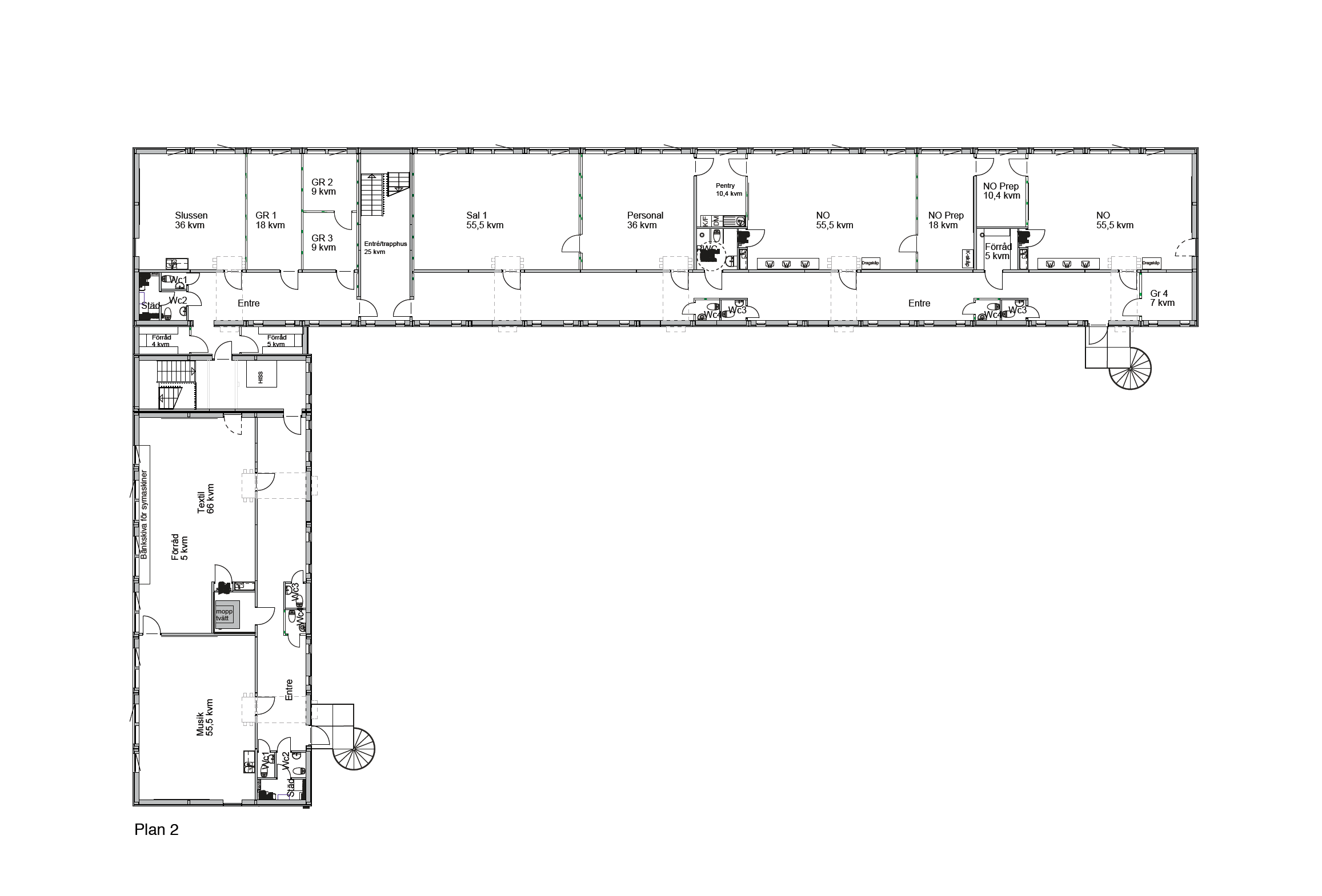
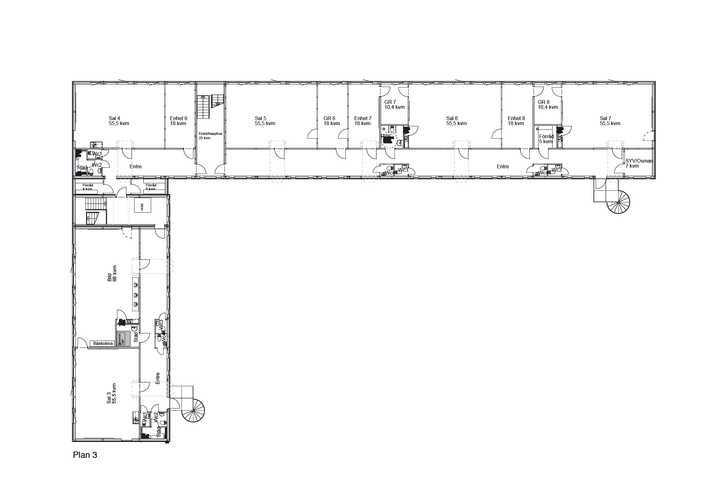
Expandias første S3000 skolepaviljong i tre etasjer ble bygget sommeren 2017 på Gullmarsplan i Stockholm. Totalt 81 S3000-moduler ble montert for å dekke Årstaskolans store behov for ekstra elevplasser.

Skolmoduler från Expandia vid Årstaskolan i Gullmarsplan, moderna och flexibla modullösningar för skolverksamhet i stadsmiljö.

Fleksibel løsning

Denne skolen er utstyrt med et fullverdig produksjonskjøkken og kantine for 140 elever per servering. Totalt 14 klasserom, inkludert to naturfagrom, musikkrom samt tekstil- og sløydsal, fullt utstyrt.

Sommeren 2019 ble skolen utvidet med ytterligere en paviljong i tre etasjer, som via en sluse er koblet sammen med den eksisterende bygningen.

Skolmoduler från Expandia vid Årstaskolan i Gullmarsplan, flexibel skollösning med flera våningsplan runt öppen skolgård i stadsmiljö.

Ingen spørsmål er for små

Hva koster en slik løsning, kan modulene stå på alle typer grunn, og hva er inkludert i leien? Vi vet at det kan dukke opp en del spørsmål når man begynner å vurdere moduler. Derfor er våre eksperter tilgjengelige for å svare på alt du lurer på.

Kundecase

Se lignende kundecase

Siden vi startet for over 30 år siden har vi levert tusenvis av midlertidige lokaler til skoler, bedrifter og boliger over hele Sverige. Her kan du se noen av løsningene vi har skapt for kundene våre.