Ekerö

Insperia daglig LSS-virksomhet

En person i rullestol ler og strekker seg etter en rød ball som blir gitt av en annen person under en felles aktivitet utendørs.
  • Kunde: Ekerö kommune
  • Bruttoareal: 778 kvm
  • Modultype: B2000
  • Innflyttingsår: 2020
  • Plassering: Ekerö
  • Aktivitet: Daglig LSS-virksomhet
  • Antall moduler: 27
  • Oppvarmingssystem: El

For et løft for oss alle! Lokalene er både finere og mer funksjonelle enn jeg kunne drømt om. De er lyse og luftige med mange og store vinduer.

Eva Hjalmarsson, enhetsleder ved Insperia.
Eva Hjalmarsson, enhetschef på Insperia.

Først i verden med CPS for voksne

Ekerö kommune er først i verden med arbeidsmetoden CPS for voksne med funksjonsvariasjon. Metoden, som opprinnelig ble utviklet for barn, praktiseres i den daglige LSS-virksomheten Insperia – et pionerarbeid som følges av metodens grunnlegger i USA. Men lokalene var et problem – helt til kommunen bestilte moduler fra Expandia.

 

En person i rullstol rör sig genom en ljus och hemtrevlig korridor i Insperia daglig LSS-verksamhet i Ekerö. Miljön är inredd med växter, sittmöbler och mjuka textilier som skapar en varm och välkomnande atmosfär.

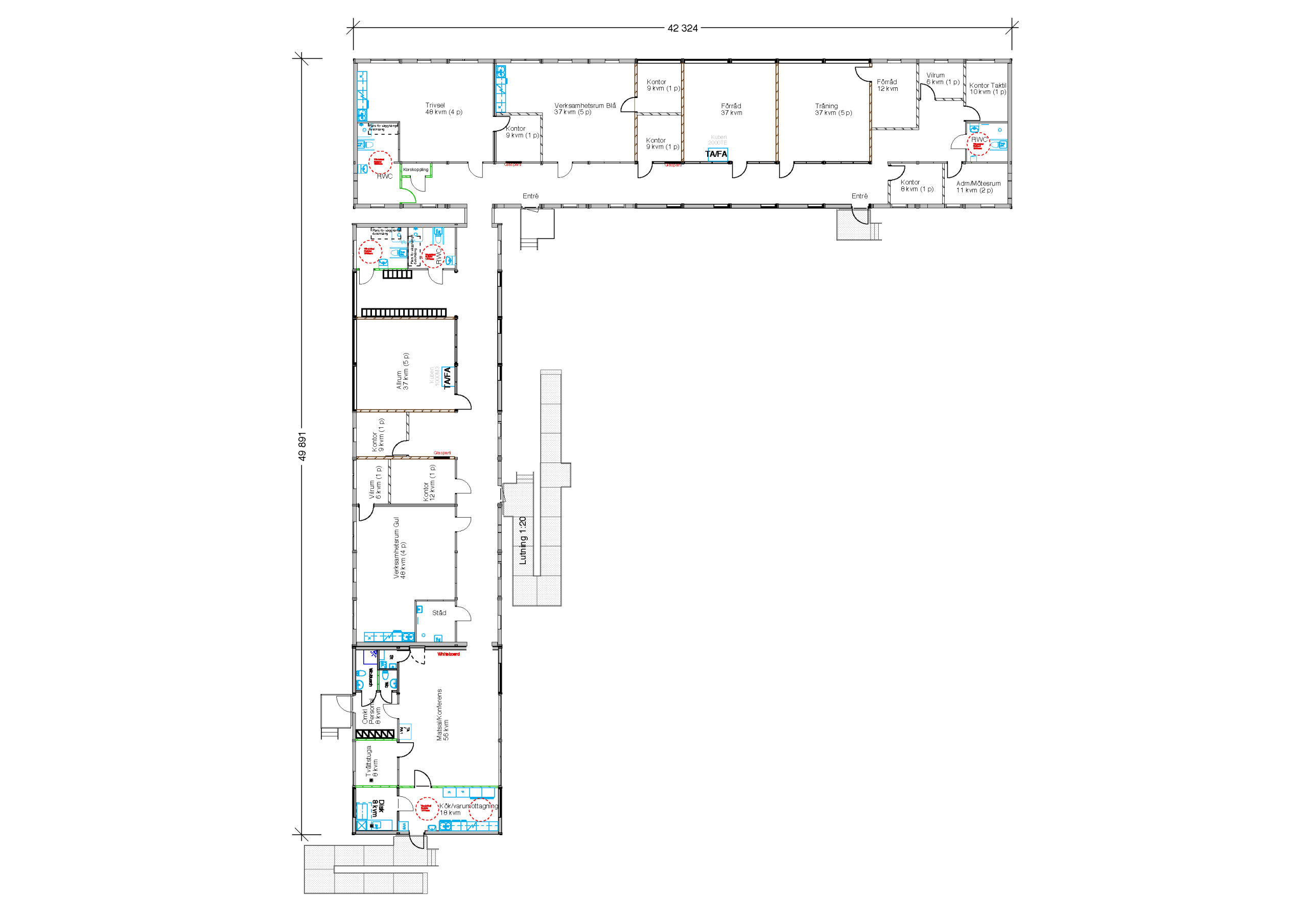
27 moduler montert på to dager

Virksomheten består i dag av 27 moduler som ble montert i løpet av to dager på en fin tomt med plen og trær, i gangavstand til Ekebyhovparken og Tappströmskanalen.

Modulene er rullestolvennlige med brede korridorer og dører, store toaletter med plass til behandlingsbenker og andre hjelpemidler, tilrettelegging for takheiser og små kjøkken i enkelte rom.

Två personer sitter på en bänk utomhus tillsammans med en hund. Den ena klappar hunden medan den andra skrattar och håller i kopplet.
Arbetsrum med skrivbord, kontorsstolar och datorer. Väggarna är täckta av färgglada, geometriska mönster som skapar en kreativ och lekfull miljö.

Service, forsikring og løpende vedlikehold

I leien inngår service, forsikring og løpende vedlikehold – som at malere, service- og ventilasjonsteknikere jevnlig ser over lokalene og deres funksjoner. Det finnes også en kundesupport man kan kontakte ved spørsmål og problemer.

 

En person står utomhus och grillar korv, vänder korvarna med en tång och ler.

Ingen spørsmål er for små

Hva koster en slik løsning, kan modulene stå på alle typer grunn, og hva inngår i leien? Vi vet at det kan dukke opp mange spørsmål når man vurderer å leie moduler. Derfor er våre eksperter tilgjengelige for å svare på alt du måtte lure på.

Kundrcase

Se lignende kundecaser

Siden vi startet for over 30 år siden, har vi levert tusenvis av midlertidige lokaler til skoler, bedrifter og boliger i Sverige, Danmark, Norge og Finland. Her kan du se noen av løsningene vi har skapt for våre kunder.