Skillingaryd

Skillingaryds helsesenter

Skillingaryds helsesenter oppført i helsemoduler fra Expandia, med fleksibel moduloppbygging tilpasset helse- og omsorgsvirksomhet.
  • Kunde: Region Jönköping län
  • Bruttoareal: 1178 kvm
  • Modultype: K10
  • Kontraktsperiode: 48 måneder
  • Innflyttingsår: 2023
  • Plassering: Skillingaryd
  • Aktivitet: Helsesenter
  • Antall moduler: 49

Her er det lyst og trivelig, rikelig med vinduer og godt dagslys. Det føles selvsagt veldig godt å vite at både ansatte og pasienter nå oppholder seg i lokaler som ikke har negativ påvirkning på helsen.

Ann-Christin Roos, virksomhetsleder.
Resepsjon på Skillingaryds helsesenter i moderne helsemoduler fra Expandia med glassluke og venteområde.

Helsesenter i lyse moduler

Helsesenteret Bra Liv i Skillingaryd har hatt langvarige problemer med vannlekkasjer og muggskader. For å løse disse utfordringene hadde de behov for en rask og effektiv løsning.

Virksomheten har nå flyttet til et helsesenter bygget med moduler fra Expandia, som de vil leie i fire år. Denne løsningen gjør det mulig for dem å fortsette å tilby helsetjenester til sine pasienter uten avbrudd, samtidig som de kan arbeide med å løse problemene ved det permanente helsesenteret.

Behandlingsrum på Skillingaryds vårdcentral i vårdmoduler från Expandia, utrustat för undersökning och fysioterapi i ljus och funktionell vårdmiljö

Trivelig helsesenter

– Det føles som om vi har fått et helt nytt helsesenter, sier Alexandra Sandberg, distriktssykepleier.

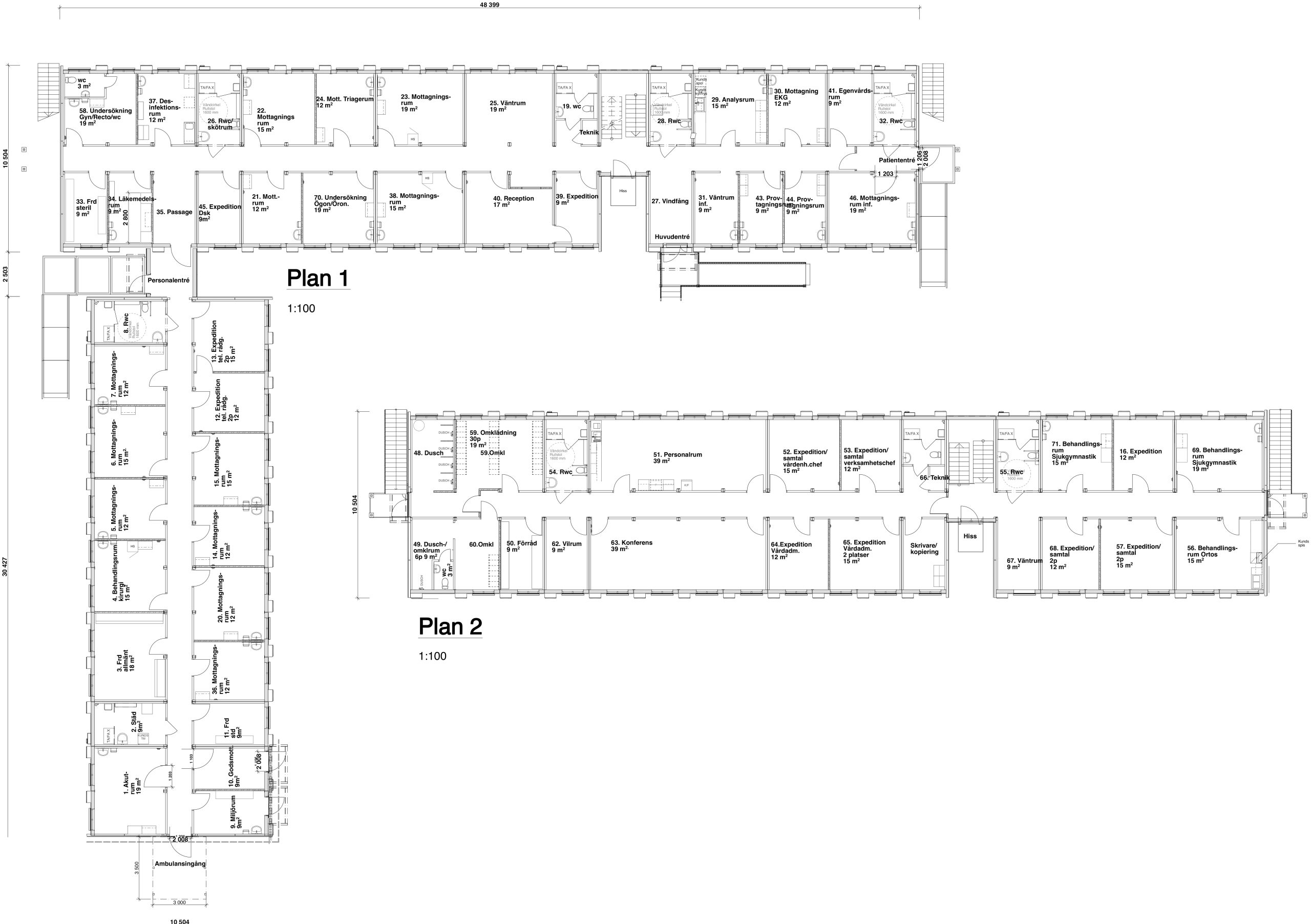
Modulløsningen består i dag av 49 K10-moduler med konsultasjonsrom, undersøkelsesrom, behandlingsrom/kirurgi, akuttrom, venterom og personalrom.

Anatomisk skelettmodell i behandlingsrum på Skillingaryds vårdcentral, inredd i moderna vårdmoduler från Expandia med ljusa ytor och funktionell vårdmiljö

Ingen spørsmål er for små

Hva koster en slik løsning, kan modulene stå på alle typer grunn, og hva inngår i leien? Vi vet at det kan dukke opp mange spørsmål når man begynner å vurdere å leie moduler. Derfor er våre eksperter tilgjengelige for å svare på alt du måtte lure på.

Kundcase

Se lignende kundecaser

Siden vi startet for over 30 år siden, har vi levert tusenvis av midlertidige lokaler til skoler, bedrifter og boliger i Sverige, Danmark, Norge og Finland. Her kan du se noen av løsningene vi har skapt for våre kunder.